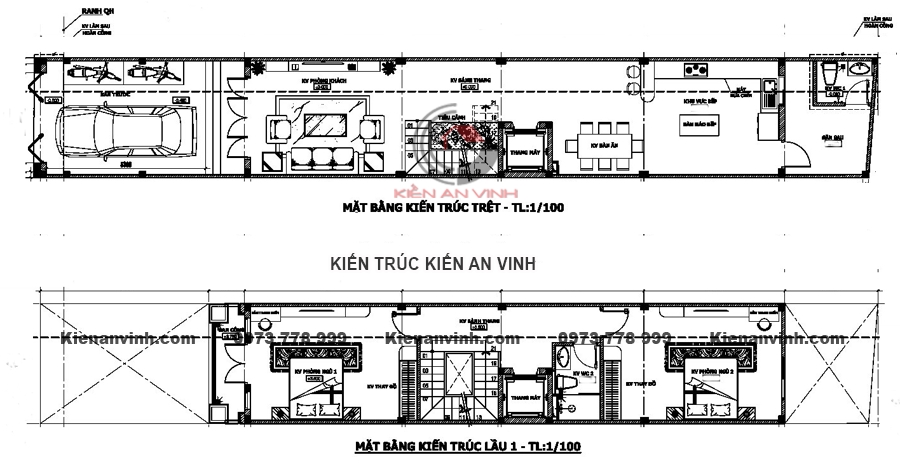
Mẫu thiết kế nhà ống 3 tầng 1 tum 4x19m tân cổ điển hiện đại có sân trước đổ ô tô 6m ở P. Thới An

Thiết kế nhà ống 3 tầng 1 tum tân cổ điển pha hiện đại hiện đang là xu hướng được nhiều gia đình ưu tiên lựa chọn, đặc biệt với những ngôi nhà phố trong các khu đô thị phát triển như Phường Thới An. Không chỉ đáp ứng nhu cầu sinh hoạt đa dạng mà còn mang lại vẻ đẹp thanh lịch, sang trọng đậm chất châu Âu. Bài viết dưới đây sẽ trình bày chi tiết thiết kế mẫu nhà ống 3 tầng 1 tum 4x19m với phong cách tân cổ điển hiện đại, có sân trước rộng rãi đủ để đổ ô tô 6m, giúp bạn có thêm ý tưởng cho tổ ấm của mình.
Thiết Kế Nhà Ống 3 Tầng 1 Tum Tân Cổ Điển Pha Hiện Đại: Giới Thiệu Chung
Thiết kế nhà ống 3 tầng 1 tum tân cổ điển pha hiện đại không chỉ là sự kết hợp giữa hai phong cách kiến trúc truyền thống và thời thượng mà còn được chú trọng về công năng. Với diện tích 4x19m, hồ sơ thiết kế đã tối ưu hóa không gian sử dụng, từ các phòng chức năng đến lối đi, tạo nên một tổ ấm tiện nghi, thoáng đãng và rất phù hợp với đô thị hiện đại.
Ngoài ra, mẫu nhà ống tân cổ điển 3 tầng 1 tum 4x19m này mang vẻ đẹp thanh lịch tinh tế nhưng vẫn sang trọng đậm chất châu Âu. Thiết kế không bị rườm rà hay quá cầu kỳ mà giữ được sự nhẹ nhàng nhưng tinh tế, tạo điểm nhấn đắt giá giữa lòng thành phố nhộn nhịp. Đây chính là lý do vì sao phong cách này rất được ưa chuộng.

Mặt Tiền Nhà Ống Tân Cổ Điển 3 Tầng 1 Tum: Vẻ Đẹp Thanh Lịch và Sang Trọng
Mặt tiền của ngôi nhà là nơi thể hiện rõ nét nhất tinh thần thiết kế tân cổ điển pha hiện đại. Tone màu kem nhẹ nhàng trở thành tông nền hoàn hảo làm nổi bật các chi tiết kiến trúc như lan can sắt mỹ thuật hoa văn uốn lượn mềm mại và quý phái. Sự phối hợp này không những tạo cảm giác ấm cúng mà còn toát lên khí chất sang trọng, đẳng cấp.
Hệ cột vuông với các gờ phào nhẹ nhàng được bố trí cân đối giữa các tầng mang lại sự vững chắc và cân bằng thị giác. Điểm này rất quan trọng bởi nó vừa tăng tính thẩm mỹ tổng thể cho mặt tiền lại vừa giúp cấu trúc nhà thêm kiên cố. Việc sử dụng các chi tiết phào chỉ đơn giản nhưng đầy tinh tế cũng là điểm nhấn đắt giá của phong cách tân cổ điển pha hiện đại.

Phân Tích Chi Tiết Thiết Kế Mặt Tiền: Màu Sắc, Lan Can và Hệ Cột
Tone màu kem không chỉ giúp giảm nhiệt vào mùa hè mà còn tạo cảm giác rộng rãi và sang trọng hơn cho ngôi nhà đẹp. Khi kết hợp với lan can sắt mỹ thuật hoa văn uốn lượn tinh xảo, mặt tiền nhà như được điểm tô thêm những nét mềm mại, vừa cổ điển vừa phảng phất cái hồn nghệ thuật của châu Âu ngày trước. Đây chính là sự giao thoa hoàn hảo giữa quá khứ và hiện đại.
Các hệ cột vuông với gờ phào nhẹ cũng làm nên sự khác biệt. Chúng không chỉ có chức năng chịu lực mà còn tạo thành những mảng khối cân đối trên mặt tiền, làm tăng chiều sâu thị giác. Điều này rất quan trọng với nhà ống có chiều ngang hẹp như mẫu nhà này, giúp tránh cảm giác nhàm chán và đơn điệu.

Sân Trước Đổ Ô Tô 6m: Giải Pháp Tiện Nghi và Tối Ưu Không Gian
Việc thiết kế sân trước rộng khoảng 6m đủ để đỗ ô tô là một điểm cộng lớn cho mẫu thiết kế nhà ống tân cổ điển 3 tầng 1 tum 4x19m này. Nó không chỉ đảm bảo sự tiện nghi khi gia đình sở hữu xe hơi mà còn tạo ra khoảng không gian đệm an toàn, riêng tư trước nhà. Sân trước cũng giúp việc di chuyển ra vào thoải mái hơn, phù hợp với phong cách sống hiện đại.
Sân rộng còn có thể tận dụng làm nơi sinh hoạt ngoài trời như vui chơi trẻ em, tiếp khách hoặc trồng cây cảnh tiểu cảnh. Đây chính là sự kết hợp hoàn hảo làm tăng giá trị sử dụng cho ngôi nhà mà không làm mất đi độ hài hòa về thẩm mỹ.
Vật Liệu Hoàn Thiện Cao Cấp: Đá Marble, Sắt Mỹ Thuật và Kính Khung Nhôm
Tầng trệt được ốp đá marble tự nhiên là lựa chọn tối ưu vừa mang lại vẻ sang trọng lại có khả năng chống bám bẩn hiệu quả. Marble là vật liệu cao cấp thường được sử dụng trong kiến trúc tân cổ điển để tạo cảm giác bề thế, sang trọng ngay từ lối vào, khiến bất kỳ ai bước vào cũng không khỏi ấn tượng.
Cùng với đó, cổng sắt mỹ thuật nghệ thuật và hệ cửa kính khung nhôm tối màu giúp mặt tiền trở nên hiện đại hơn. Sắt mỹ thuật được gia công tinh xảo vừa tạo điểm nhấn nghệ thuật vừa bảo vệ an toàn cho không gian để xe phía trước. Cửa kính khung nhôm tận dụng ánh sáng tự nhiên hiệu quả đồng thời tăng tính thẩm mỹ hiện đại xen lẫn cổ điển nhẹ nhàng.
Cổng Sắt Nghệ Thuật và Mái Che Ngói: Điểm Nhấn Duyên Dáng và Bảo Vệ
Mặt tiền mẫu thiết kế nhà đẹp 3 tầng tân cổ điển hiện đại cổng sắt nghệ thuật là thành phần không thể thiếu trong thiết kế thể hiện sự tinh tế và bảo vệ cho ngôi nhà. Mái che ngói nhỏ kết hợp cổng không chỉ làm duyên cho mặt tiền mà còn giữ cho xe đỗ sân trước tránh mưa nắng hiệu quả. Đây là thiết kế nhỏ nhưng rất có giá trị về mặt thẩm mỹ và công năng sử dụng.
Sự kết hợp này vừa tôn lên nét tinh xảo của phong cách tân cổ điển, vừa phù hợp với khí hậu nhiệt đới gió mùa của Việt Nam. Thiết kế này không chỉ giúp bảo vệ phương tiện mà còn làm tăng cảm giác ấm áp, được chăm sóc tỉ mỉ cho tổ ấm của gia đình.
Tận Dụng Ánh Sáng Tự Nhiên: Thiết Kế Cửa Kính Khung Nhôm Tối Màu
Các tầng lầu của ngôi nhà được bố trí hệ cửa kính khung nhôm tối màu nhằm tận dụng tối đa ánh sáng tự nhiên. Thiết kế này vừa giúp không gian nội thất tràn đầy sức sống, giảm chi phí chiếu sáng ban ngày, vừa tạo nên sự sang trọng hiện đại hòa quyện cùng phong cách tân cổ điển chủ đạo.
Kính khung nhôm còn mang lại sự thoáng đãng, mở rộng tầm nhìn ra bên ngoài, làm tăng cảm giác gần gũi với thiên nhiên. Đây chính là điểm nhấn cho phong cách pha trộn vừa cổ điển vừa hiện đại, giúp cuộc sống trong nhà thêm phần thoải mái và thư thái.
Sân Thượng Tầng Tum: Không Gian Thư Giãn Lý Tưởng Với Tiểu Cảnh Xanh
Tầng tum phía trên được thiết kế tạo khu sân thượng rộng rãi, có mái lam che nắng và tiểu cảnh xanh tươi mát. Đây là không gian thư giãn hoàn hảo sau những giờ làm việc mệt mỏi, gia đình có thể tận hưởng không khí trong lành, ngắm nhìn quang cảnh xung quanh hoặc tổ chức những buổi tiệc nhỏ ngoài trời.
Thiết kế tầng tum còn giúp ngôi nhà trở nên cao ráo, thoáng đãng hơn, góp phần cải thiện phong thủy và sự lưu thông gió tự nhiên. Đây đồng thời cũng là xu hướng được nhiều gia đình thành thị lựa chọn ở hiện tại để gia tăng giá trị sống.
Ưu Điểm Nổi Bật Của Mẫu Nhà Ống Tân Cổ Điển 3 Tầng 1 Tum 4x19m
Mẫu thiết kế nhà ống tân cổ điển 3 tầng 1 tum 4x19m này sở hữu nhiều ưu điểm như thiết kế thanh lịch tinh tế, không gian sống hiện đại tiện nghi, sự kết hợp hài hòa giữa cổ điển và hiện đại tạo điểm nhấn thẩm mỹ đắt giá. Ngoài ra, diện tích sân trước đủ để đỗ ô tô rất phù hợp với nhu cầu cuộc sống ngày nay.
Ngoài ra, việc sử dụng vật liệu cao cấp từ đá marble, sắt mỹ thuật đến kính khung nhôm góp phần nâng tầm giá trị căn nhà, khẳng định đẳng cấp chủ nhân. Những điểm cộng này khiến mẫu nhà trở thành lựa chọn tối ưu cho các gia đình mong muốn sở hữu một không gian vừa đẹp vừa tiện nghi.
Sự Hòa Quyện Giữa Tân Cổ Điển và Hiện Đại: Xu Hướng Thiết Kế Nhà Ống Đô Thị
Phong cách thiết kế nhà 3 tầng tân cổ điển pha hiện đại không chỉ đơn thuần là sự kết hợp về mặt hình thức mà còn phản ánh xu hướng sống mới trong đô thị. Người Việt ngày càng ưu tiên thiết kế nhà phù hợp với lối sống hiện đại, hướng tới sự tiện nghi đồng thời không đánh mất nét truyền thống tinh tế.
Tổng thể ngôi nhà là sự hòa quyện hài hòa giữa phong cách tân cổ điển sang trọng và công năng hiện đại, phù hợp với các khu đô thị hiện nay. Điều này chứng minh thiết kế không chỉ đẹp về mặt thẩm mỹ mà còn vận dụng linh hoạt, đáp ứng trọn vẹn nhu cầu và sở thích gia chủ.
Mẫu thiết kế nhà ống 3 tầng 1 tum 4x19m tân cổ điển hiện đại có sân trước đổ ô tô 6m ở Phường Thới An
Tại Phường Thới An, mẫu thiết kế nhà ống 3 tầng 1 tum tân cổ điển pha hiện đại có sân trước đổ ô tô 6m đã nhận được nhiều phản hồi tích cực từ các gia đình và giới chuyên môn. Với diện tích xây dựng 4x19m, ngôi nhà hội tụ đầy đủ yếu tố về thẩm mỹ, công năng và tiện nghi hiện đại.
Việc lựa chọn thiết kế này giúp gia chủ có một không gian sống lý tưởng, đảm bảo sự riêng tư, an toàn và vẻ đẹp sang trọng bền vững theo thời gian. Đồng thời, sân trước rộng rãi cũng thuận tiện cho sinh hoạt và phương tiện đi lại, phù hợp với điều kiện sống tại khu vực đô thị phát triển như Phường Thới An.
Tổng kết
Mẫu Thiết kế nhà ống 3 tầng 1 tum tân cổ điển pha hiện đại với diện tích 4x19m và sân trước đổ ô tô 6m là giải pháp hoàn hảo cho những ai mong muốn sở hữu một không gian sống vừa sang trọng, tinh tế, vừa tiện nghi hiện đại trong khu đô thị đang phát triển. Từ mặt tiền thanh lịch với tone màu kem nhẹ nhàng, lan can sắt mỹ thuật hoa văn uyển chuyển, hệ cột vuông cân đối đến vật liệu hoàn thiện cao cấp như đá marble, kính khung nhôm và cổng sắt nghệ thuật, tất cả hòa quyện tạo nên một tổ ấm đẳng cấp, bền vững với thời gian. Tầng tum rộng rãi với sân thượng xanh giúp gia đình có thêm không gian thư giãn thoáng đãng. Đây chính là xu hướng thiết kế nhà ống được nhiều gia đình lựa chọn hiện nay, đặc biệt tại các khu đô thị như Phường Thới An.
CÔNG TY TNHH THIẾT KẾ – XÂY DỰNG NHÀ KIẾN AN VINH
Trụ sở chính: 434 Nguyễn Thái Sơn, Phường An Nhơn, TP. Hồ Chí Minh
VPĐD1 : 52 Tân Chánh Hiệp 36, Phường Trung Mỹ Tây, Quận 12, TP. Hồ Chí Minh
Chăm sóc khách hàng: (08)3715 6379 – (08) 6277 0999
Phòng Kế Toán: (08) 3715 2415 - (028) 3715 6379
Phòng Vật tư: 0981 507 588
Hotline: 0973 778 999
Email: kienanvinh2012@gmail.com
Website: kienanvinh.com
Tiếng việt
English



Bình luận